Монтажная рама AlcaPlast с бачком для видуара и смесителя A108F/1500
Коротко о товаре
-
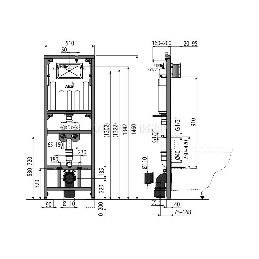
Монтаж:в стену/пол
-
Страна:Чехия
-
Назначение:для видуара
-
Ширина, см:51
-
Глубина, см:20
Часто задаваемые вопросы
Доставим за 1-2 дня
по Москве и Московской области
Отправим транспортной компанией
Доставим до любой транспортной компании. Отправим товар в любую точку России
Область применения:
- Для монтажа настенного смесителя
- Для подвесных чаш с интервалом крепления до 420 мм и стоковым коленом Ø90/110
- Для монтажа к несущей стене или в гипсокартонную конструкцию
Свойства:
- Для подключения настенного смесителя
- Встроенный бачок также позволяет ополаскивать чашу
- Регулируемые по высоте монтажные перекладины
- Поворотная пластина для крепления настенного смесителя с шагом 65 – 150 мм
- Конструкция рамы позволяет производить монтаж к профилю для гипсокартона, предназначенного для этих целей или к несущей стене
- Установленная система закрывается гипсокартонными листами и не нуждается в дополнительных крепёжных элементах
- Конструкция полистирольной изоляции предотвращает процесс конденсации на поверхности бачка и ослабляет вибрацию в строительной конструкции
- Двойной смыв, независимо регулируемый, с гигиеническим резервом
- Возможность сервиса без использования инструментов
- Подвод воды к задней стенке бачка или вверху бачка
- Бачок сделан из одного фрагмента полипропилена, что обеспечивает его 100% герметичность
- Крышка сервисного отверстия облегчает монтаж и защищает от влаги и грязи
- Регулируемые выдвижные ноги в диапазоне 0 – 200 мм
- Монтажная глубина рукава регулируется от 20 до 95 мм
- Монтажная глубина – 125 мм, со стоковым коленом – 160 мм
- Материал: металл обработанный порошковой краской
Технические параметры:
- Подвод воды к задней стенке бачка или вверху бачка с помощью монтажных отверстий G1/2"
- Рабочий диапазон давления 0,05 – 0,8 МПа
- Рекомендуемый диапазон давления 0,3 – 0,6 МПа
- Большой смыв 6 – 9 л
- Малый смыв 2,5 – 3,5 л
- Стандартные настройки большого смыва 6 л
- Стандартные настройки малого смыва 3 л
- Гигиенический резерв 3 л
- Объем воды в бачке 9 л
- Несущая способность 400 кг
-
Монтаж:в стену/пол
-
Страна:Чехия
-
Назначение:для видуара
-
Ширина, см:51
-
Глубина, см:20
Монтажная рама AlcaPlast с бачком для видуара и смесителя A108F/1500 купить
проще, чем Вы думаете - просто позвоните по телефонам: +7(985)250-88-11 или +7(919)773-83-37 , а наши менеджеры с многолетним опытом проконсультируют Вас по всем вопросам на самом высоком уровне!
Похожие предложения
Вы уже просматривали